The Grand Union Village School will be an 80-place primary school for pupils with special educational needs and disabilities (SEND) in the London Borough of Hillingdon. The school will be operated by the Eden Academy Trust. ISG have appointed Noviun to develop the design from RIBA Stage 2+ to 7.
The school is designed to meet the needs of children who have severe learning difficulties (SLD) and profound & multiple learning disabilities (PMLD). Many of the pupils with SLD are also classified as having ASC (Autistic Spectrum Conditions). The new school will reduce the pressure in the borough for SEN provision as the existing facility is exceeding its capacity.
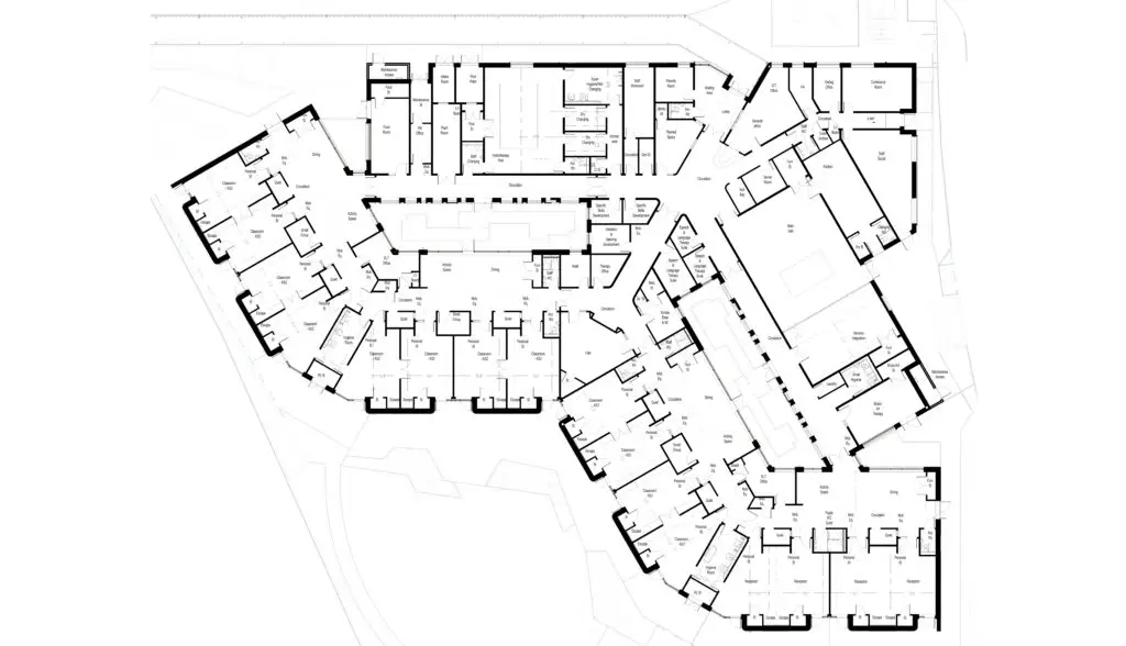
The following key design drivers informed the adjacencies and the built form.
- A ‘Sensory Design’-led approach
- Distributed Dining Accommodation
- ‘Useful’ Corridors – Open-plan Dining & Learning
- Tailored Cellular Activity classrooms
- Design for Agile Learning Hub Staffing
- Hard-wired Escape Spaces
The building is designed as a single storey building with three separate sections catering for various levels of stimuli. High stimulus activities are located towards the north and low stimulus activities are located towards the south with the intermediate zone separating the two in the centre.
The building is designed to meet the new London Plan and will be constructed using prefabricated timber panel system. Biodiversity of the site will be enhanced via the new landscape proposal as well the extensive green roof. The building will use Air source heat pumps for heating and hot water.
The project started on site early 2022 and is expected to complete in September 2023.









